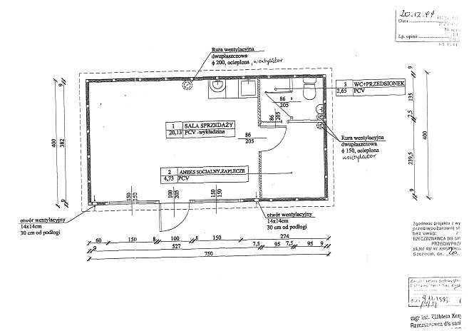
Polski Związek Działkowców Okręg w Szczecinie informuje, że jest możliwość zakupu używanego pawilonu z przeznaczeniem na biuro ROD, powierzchnia pawilonu 30 m2 szczegółowe wymiary oraz wygląd przedstawiamy poniżej.
Cena za pawilon 10 000,00 zł
Możliwość zakupu pawilonu wraz z klimatyzacją firmy GREE, klimatyzacja z funkcją grzania za cenę 14 000,00 zł
telefon kontaktowy: 501 567 414
email: magdalenahop@poczta.onet.pl









